Mediterranes Baugrundstück mit genehmigten Plänen in Bestlage von Llucmajor
Bauplatz zum verkauf in Llucmajor Interior
270.000 €
Ref: 3520100
Beschreibung
Attraktives Baugrundstück mit genehmigten Plänen in Bestlage von Llucmajor
Dieses hervorragend gelegene Grundstück in Llucmajor bietet eine seltene Gelegenheit, ein modernes Wohnprojekt in einer der gefragtesten Lagen im Süden Mallorcas zu realisieren. Mit einer Grundstücksgröße von ca. 280 m² eignet sich das Areal ideal für den Bau eines zweistöckigen Wohnhauses, entweder als großzügiges Einfamilienhaus oder als zwei separate Wohneinheiten – perfekt für Eigennutzer, Mehrgenerationenwohnen oder als Investment.
Bereits ein großer Vorteil: Die Baupläne wurden erstellt und beim Rathaus eingereicht, wodurch ein wesentlicher Teil der Planungsarbeit bereits erledigt ist und der Bau zügig voranschreiten kann.
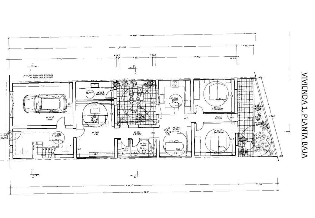
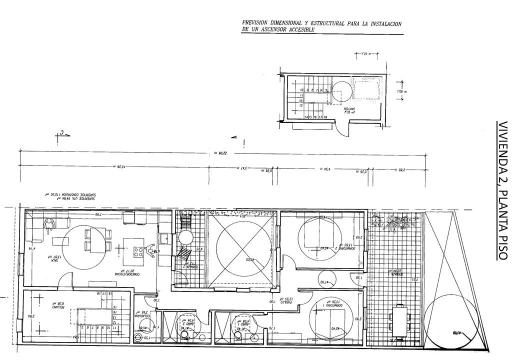
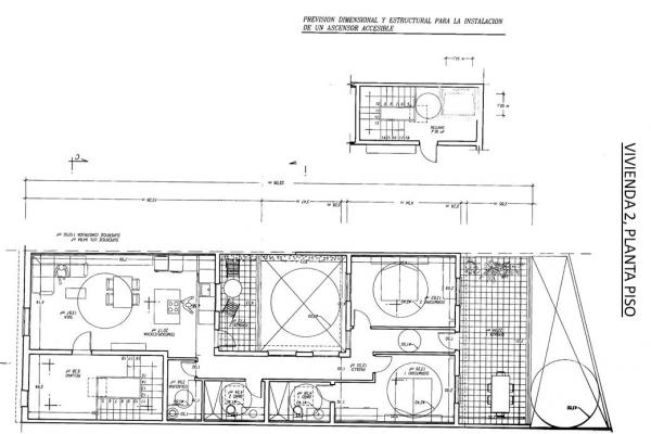
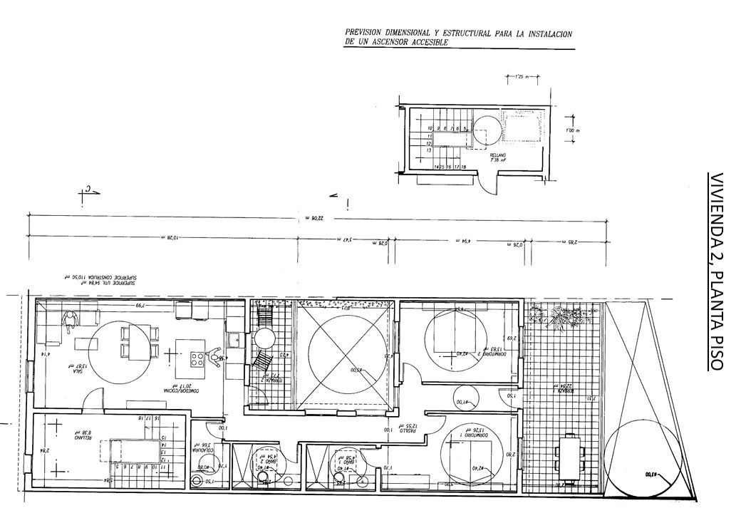
Geplantes Bauprojekt
• Gesamtkonstruierte Fläche: ca. 259 m²
• Untere Etage: ca. 149 m²
• Obere Etage: ca. 102 m²
• Garage: ca. 27 m²
• Möglichkeit für zwei separate Wohnungen oder ein großzügiges Einfamilienhaus
• Zusätzlich verbleibt Platz für einen kleinen Garten oder Außenbereich
Die durchdachte Planung erlaubt eine optimale Raumnutzung, helle Wohnbereiche und moderne Architektur, kombiniert mit praktischen Lösungen wie einem privaten Garagenstellplatz.
Lage – Llucmajor
Die Lage ist unschlagbar: Llucmajor zählt zu den aufstrebendsten Gemeinden Mallorcas und verbindet authentisches mallorquinisches Leben mit einer sehr guten Infrastruktur. Einkaufsmöglichkeiten, Restaurants, Cafés, Schulen, medizinische Versorgung und alle wichtigen Dienstleistungen sind schnell erreichbar.
Gleichzeitig bietet Llucmajor eine hervorragende Anbindung:
• ca. 15 Minuten zum Flughafen
• kurze Fahrzeiten zu den Stränden im Süden der Insel
• gute Verbindung nach Palma
Die Region erfreut sich wachsender Beliebtheit bei Einheimischen, internationalen Käufern und Investoren, was Llucmajor zu einem stabilen und zukunftssicheren Standort macht.
Fazit
Dieses Grundstück vereint beste Lage, bereits eingereichte Baupläne und flexible Nutzungsmöglichkeiten – eine ideale Grundlage für Ihr Wohn- oder Investitionsprojekt auf Mallorca. Ob zur Eigennutzung oder als Kapitalanlage: Hier entstehen Werte mit Perspektive.







